Designing for Connection


Cate’s Place, St Ives
Concept Design – Phase 1

Cate’s Place is a concept design exploring spatial reconfiguration and a contemporary Hamptons aesthetic for a family home in St Ives. Developed through Phase 1, the project focuses on improving flow, connection to the outdoors, and establishing a calm, timeless design direction prior to design development.

Reimagining Flow & Connection

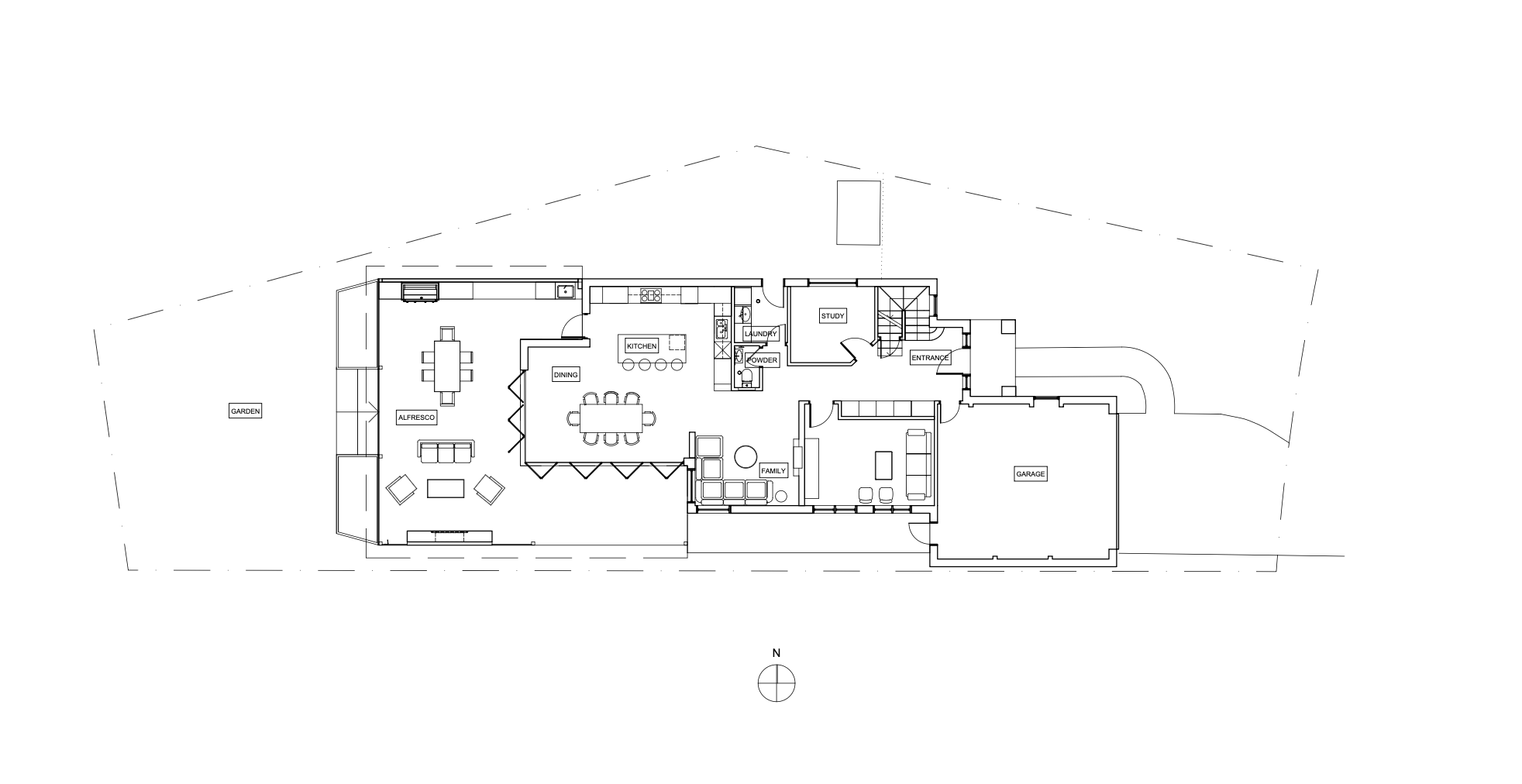
The proposed layout reconfigures the ground floor to improve flow between kitchen, dining, and alfresco spaces, prioritising everyday family living and connection to the outdoors.

The plan responds to the existing footprint, introducing clearer zoning, improved circulation, and stronger visual links between interior and exterior spaces, while maintaining the home’s original character.

Design Drivers

Cate’s Place is an existing family home in St Ives requiring improved spatial flow, stronger connection to the outdoors, and a more cohesive relationship between living, dining, and alfresco areas.

The brief focused on rethinking internal adjacencies rather than increasing the home’s footprint, prioritising day-to-day family living, entertaining, and long-term flexibility.

Phase 1 explored layout refinement, circulation clarity, and a contemporary Hamptons design language — establishing a clear, timeless direction to guide future design development.

Atmosphere & Material Expression

Interior and alfresco visualisations exploring mood, texture, and spatial experience.

Material Language

A cohesive palette applied across key spaces.

The material palette was developed to ensure continuity and restraint across the home, balancing warmth, texture, and longevity.
Natural timbers, soft neutral finishes, and considered stone selections are applied consistently across key spaces, reinforcing a calm and cohesive design language.

Previous
Previous

St Ives Project

Next
Next

Gather Restaurant